Powrót
Poprzednie
Wróć do galerii
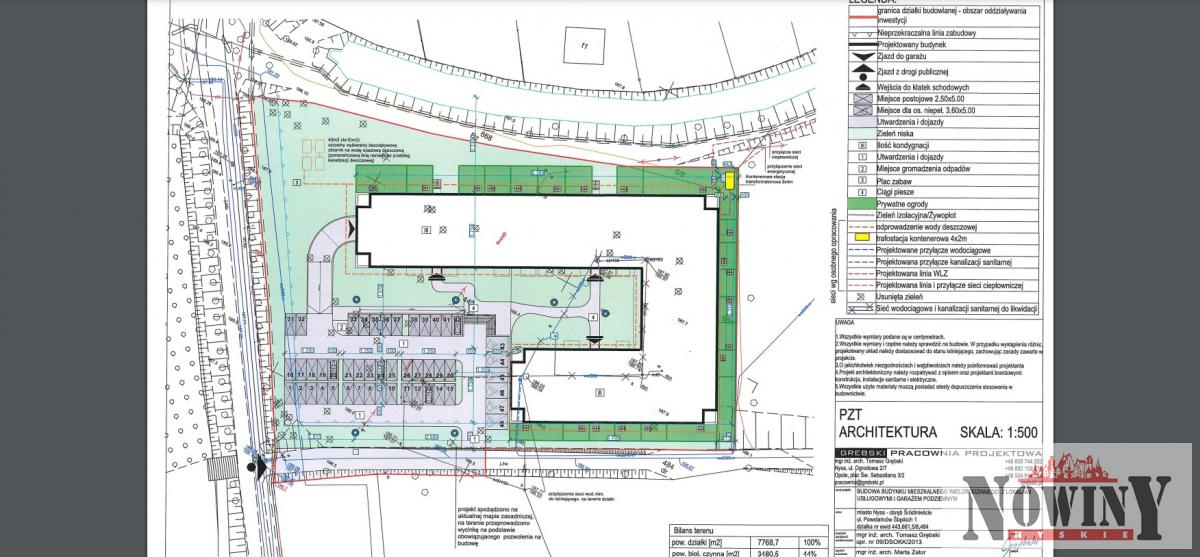
Blokowisko w parku miejskim. Czy burmistrz i radni się na to zgodzą?
Zdjęcie 7 z 7
Poprzednie
Udostępnij
Reklama